



N101w17188 Tanglewood Dr Germantown, WI 53022
-
OPENSun, Oct 1911:30 am - 1:00 pm
Description
1939212
$1,886(2024)
0.63 acres
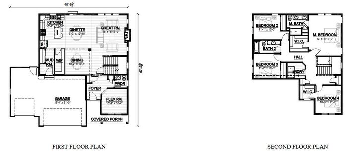
Single-Family Home
2025
2 Story
Germantown
Washington County
Heritage Park North
Listed By
METRO MLS
Last checked Oct 14 2025 at 8:11 PM GMT-0600
- Full Bathrooms: 2
- Half Bathroom: 1
- Oven
- Range
- Refrigerator
- Cable Tv Available
- Pantry
- Dishwasher
- Microwave
- Disposal
- At Least One Bathtub
- Shower Over Tub
- Stove
- Mbr Bath Walk-In Shower
- Shower Stall
- Gas Fireplace
- Kitchen Island
- High Speed Internet
- Walk-In Closet(s)
- Concrete Driveway & Walkway to Front Door
- Simulated Wood Floors
- Heritage Park North
- Fireplace: Yes
- Forced Air
- Central Air
- Dues: $465
- Vinyl
- Stone
- Sewer: Municipal Sewer, Municipal Water
- Fuel: Natural Gas
- Middle School: Kennedy
- High School: Germantown
- Attached
- Electric Door Opener
- 2
- 2,499 sqft